合同会社サンシャイン・ラボ 代表の松原です。
OMソーラーと陽のまどでは、大きく異なる部分があります。それは夏排気運転の有無。
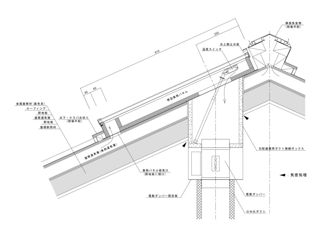
OMソーラーの集熱面の納まりは↓のような感じで、集熱通気層は棟ダクトで行き止まり。送風機を運転しなければ熱い空気の行き場所がありません。冬はこれでも良いのですが、夏場の高温空気の処理に困ります。送風機が停止したままだと集熱温度は100℃を超える瞬間もあるので、集熱面を構成する材料を劣化させる恐れが出てきます。

集熱面保護のためにOMソーラーでは「夏排気」という機能が必須でした。夏の昼間は、OMハンドリングボックスが↓のように集熱空気を屋外に排出しますが、ただ捨てるだけではもったいないので、熱交換器を通してお湯を採るという事をやっていました。OMソーラーにおけるお湯採りは、とても有用な太陽熱利用方法ですが、実のところは建築的に厳しい温度になってしまう集熱面を守るための苦肉の策でもあったのです。

一方の「陽のまど」においては、夏排気を不要としています。それは集熱パネルという耐熱性に優れた部材を使用し、屋根を構成する材料(防水シートや木材など)に大きな熱の負担を与えない構造としているからです。また一般の屋根と同様に軒先から棟に通じる屋根通気層を設けるので、陽のまどが停止している夏の昼間は、自然通気により高温の空気は排出されるのです。

このような仕様を選択した理由として送風機に対する熱的な負担が大き過ぎると感じていたからです。OMソーラーにおいてお湯採りはお客様に喜ばれる機能ですが、高温の空気を連続して通す事になるので、送風機にとっては耐久性に悪影響を及ぼすことになります。またこれにより送風機の筐体が加熱されてしまうので、小屋裏でストーブを焚いているような状態になってしまい「OMの家は夏が暑い」と言われる原因にもなっていました。このような状況をつくらないためには、送風機による夏排気運転をしない事がポイントになるので、耐熱性に優れる集熱パネルを使用する事でこれを回避するようにしたというのが、「陽のまど」の考え方です。
OM改修には必須な夏排気
「陽のまど」では不要な「夏排気」ですが、OMソーラーの改修においては、この機能は必須になります。送風機内に高温の空気を通すことは、耐久性に大きく影響するので、できれば避けたいのですが、OM集熱面を守るために送風機1台を犠牲にする方が被害は少なくて済むとも言えるでしょう。OMソーラーの送風機では、モーター内に封入されるグリスを耐熱性に優れるものに変更していましたが、うちでそんな特注品をオーダーする事はできません。かと言って1年や2年で壊れてしまうような物でもマズいので、現行仕様のモーターで夏排気を行った場合にどのような状況が想定されるか検討してみました。
メーカーに見解を問い合わせたところ、現在使用している製品の使用温度条件はー10℃~+40℃。「上限以上の空気が流れた場合、温度ヒューズが溶断し軸受がロックします。」との回答でしたが、私のこれまでの経験で60℃以上の高温空気が流れても温度ヒューズ が作動して軸受けがロックされたという事象は起きていません。詳細はわかりませんが、もっと高温で作動する温度ヒューズが内蔵されていると思われます。実際、夏場にどれくらいの温度の空気が流れているか、現在計測中の紀州サンウッド倉庫(和歌やm兼那智勝浦町)のデータにて確認してみました。
◆紀州サンウッド倉庫(和歌山県那智勝浦町)での実測
2024年11月から稼働している太陽熱木材乾燥庫「紀州サンウッド倉庫」の2025年8月の運転状況です。



紀州サンウッド倉庫では、季節に関係なく24時間365日ファンを運転させて、集熱空気や夜間外気を倉庫内に取り入れています。運転開始以来、外気温度、湿度と庫内温度、湿度、ダクト内温度を毎時1回計測してきました。その中で最も集熱温度が高くなっていたのが8月のお盆前頃でした。倉庫内外共に温度が上昇していて、昼頃は連日60℃超の集熱空気がファンを通過していました。しかしお盆を過ぎてからは太陽の動きに呼応するように徐々に温度は下がってきています。つまりファンに悪影響を与えるような高温空気に晒される期間は、割と限定的なのだという事がわかります。もちろんこのデータだけで判断するのは早計で、集熱面の大きさやファンの設置状況によっては、もっと高い温度に晒されているケースがあると思います。でもこの熱をそのまま放置するわけにいかないのが、OMソーラーの集熱面なのです。
◆ToSMS(宮城県登米市)からの検証
ToSMSは、宮城県で2013年から稼働している太陽熱木材乾燥庫です。ここでは運転開始以来、休むことなく送風機が働き続けてきて、昨年ファンモーターが寿命を迎えました。ファンユニットの交換を行って再稼働させましたが、取り外したファンを分解して、内部の様子を確認した事をブログに書きました。↓
ToSMSのファンを分解してみた – サンシイン・ラボ
ファンを過酷な条件で使用し続けた場合の最期を見ることができました。しかしこれはToSMSの使用環境が特別過酷であったという事もあるので、住宅であればここまでの劣化にはならないと想像します。もしファンの交換が必要になったとしても、陽のまどのファンボックスは、ファンユニットのみの交換で対応する事ができますから「全取替」というような金銭的に大きな負担にはならない形でメンテナンスする事ができると考えます。
これら2つの検証から現行仕様のファンで「夏排気」をさせる事にしました。
次は、このハードで実際のOM改修工事に挑んでみるつもりです。この続きをお楽しみに!

